Sold Property

1 Amelia Street, BURNIE, TAS 7320

  • 566
  • 224 m2
  • 3
  • 2
  • 1
  • 2

So Good...

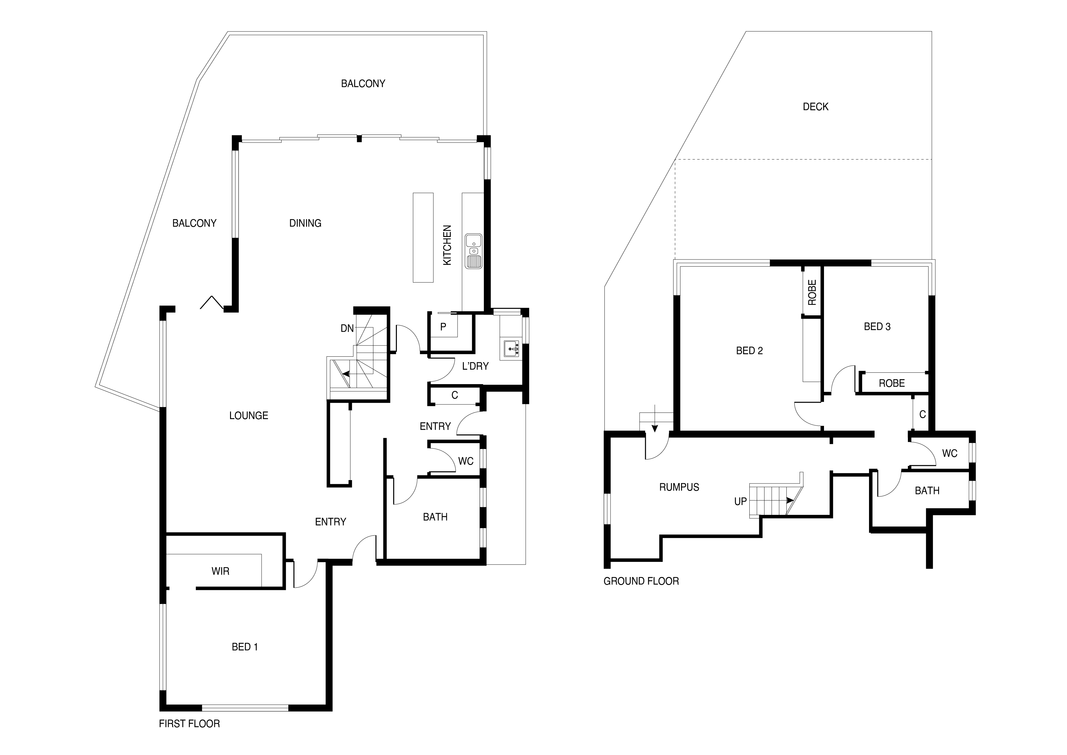
This stunning home is perfectly tucked away on the fringe of the CBD, offering breathtaking views of the city skyline, West Beach, and the sparkling ocean beyond.

Featuring a modern design, this home boasts two stylish bathrooms, open-plan living spaces, and a large deck-an ideal spot for morning coffee or entertaining friends while soaking in the scenery.

The thoughtfully designed layout includes the master bedroom upstairs, while the second and third bedrooms are located downstairs alongside their own bathroom and a cozy breakout space, perfect for relaxation or work.

Beautifully presented with edgy details, hardwood floors, and contemporary finishes, this property exudes charm and sophistication.

Conveniently located within walking distance to the town centre, shops, and vibrant eateries, this home offers the ultimate in lifestyle and convenience. Truly a unique offering-step inside, and you'll never want to leave!

*Harcourts Burnie has no reason to doubt the accuracy of the information in this document which has been sourced from means which are considered reliable, however we cannot guarantee accuracy. Prospective purchasers are advised to carry out their own investigations. All measurements are approximate.* Property ID: #L31483597

Show More

Sold Date

  • 13 January, 2025

Property features

  • General: Built in Robes, Reverse Cycle Aircon
  • Exterior/Outdoor: Shed

Office

Harcourts Burnie

Repayment Calculator

Est. bond $1920
  • 566
  • 224 m2
  • 3
  • 2
  • 1
  • 2

Sold Property

1 Amelia Street, BURNIE, TAS 7320

So Good...

This stunning home is perfectly tucked away on the fringe of the CBD, offering breathtaking views of the city skyline, West Beach, and the sparkling ocean beyond.

Featuring a modern design, this home boasts two stylish bathrooms, open-plan living spaces, and a large deck-an ideal spot for morning coffee or entertaining friends while soaking in the scenery.

The thoughtfully designed layout includes the master bedroom upstairs, while the second and third bedrooms are located downstairs alongside their own bathroom and a cozy breakout space, perfect for relaxation or work.

Beautifully presented with edgy details, hardwood floors, and contemporary finishes, this property exudes charm and sophistication.

Conveniently located within walking distance to the town centre, shops, and vibrant eateries, this home offers the ultimate in lifestyle and convenience. Truly a unique offering-step inside, and you'll never want to leave!

*Harcourts Burnie has no reason to doubt the accuracy of the information in this document which has been sourced from means which are considered reliable, however we cannot guarantee accuracy. Prospective purchasers are advised to carry out their own investigations. All measurements are approximate.* Property ID: #L31483597

Property Features

  • General: Built in Robes, Reverse Cycle Aircon
  • Exterior/Outdoor: Shed

Sold Date

  • 13 January, 2025
Calculate your home loan repayments
Request Live Stream Inspection

Harcourts Burnie

Office Harcourts Burnie

Map Location

Get Directions

Need to sell before you Buy?

Need to sell before you Buy?

If you like what you see, but know you'll need to sell before buying, why not find out what you could be sitting on today with an instant Digital Property Appraisal, highlighting the market value including the recent sales, rental history, suburb insights and more.