Property for Sale

17 North Shore Road, HARDWICKE BAY, SA 5575

  • 237
  • 3
  • 1
  • 3

$749,000 - $779,000

Troy Goldsworthy Nutrien Harcourts Minlaton RLA102485

Absolute Beach Front Shack - Renovate, Rebuild or Relax

A fantastic opportunity to secure absolute beach frontage for you and your family to enjoy for decades to come. The property is very neat and tidy, ready for immediate enjoyment while there's endless potential for the future through renovation or to utilise this prime location to rebuild your dream beachfront home.

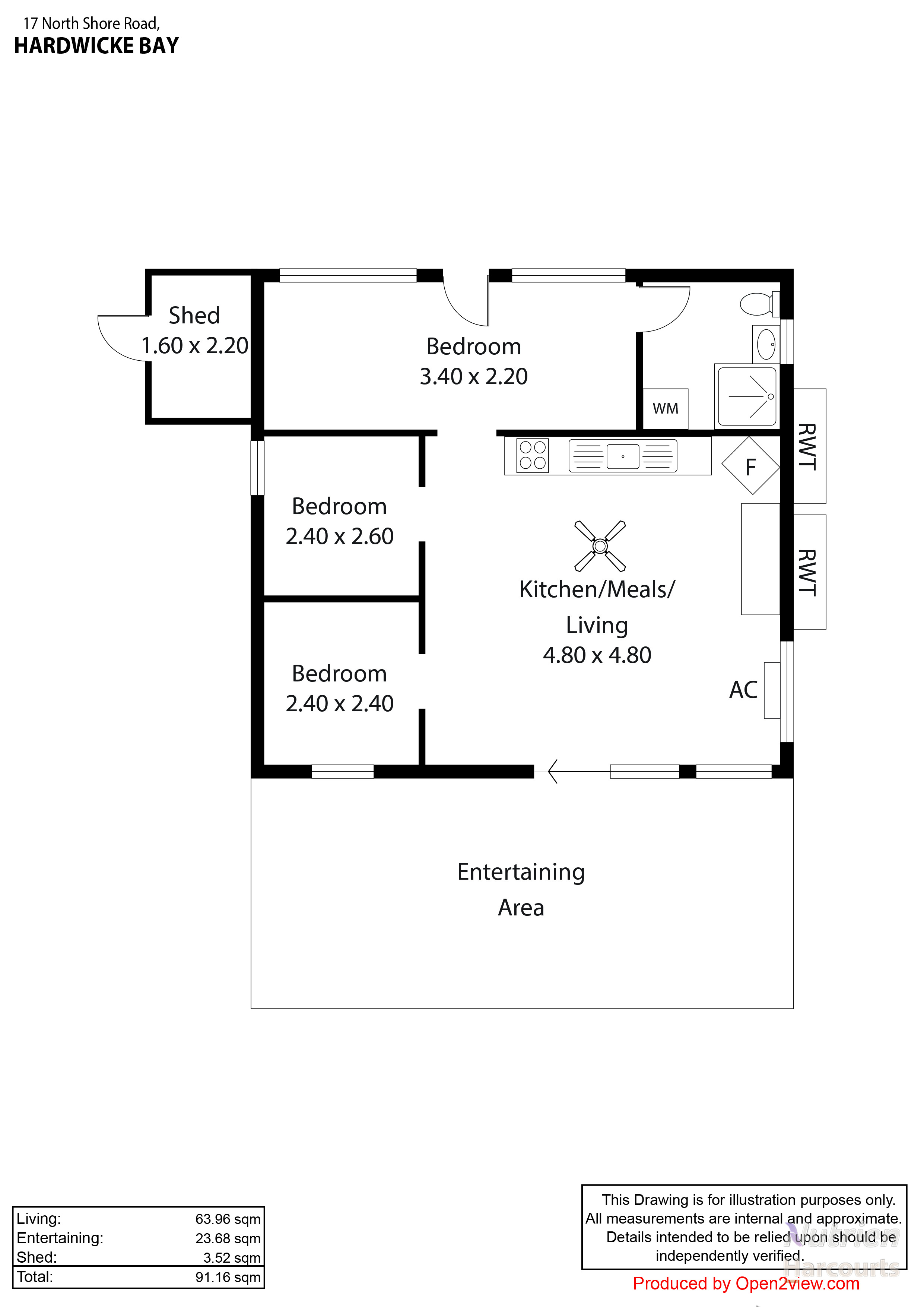
Set on a 237m2* block the home features three bedrooms and 1 bathroom along with open plan kitchen, dining and meals area which opens onto the front verandah and is kept comfortable year round by the reverse cycle air conditioner.

The property serves a very functional space to accommodate the family as you enjoy holidays and long weekends playing on the beach, catching fish or simply just relaxing and enjoying those spectacular Hardwicke Bay sunsets.

The home has mains water as well as town waste system connected and has off street parking on the southern side perfect for your boat when it's not in the water. The external garden shed will help house the beach toys and equipment for easy access down onto the sand.

The front verandah is the absolute perfect spot for a BBQ lunch or dinner, gazing out over the Spencer Gulf across to Point Turton and beyond with just a few steps needed to get down to the beach.

Local waters are known for their excellent fishing with King George Whiting and Squid amongst the common catches while world class Flaherty's beach immediately adjoins Hardwicke Bay should you ever want to go further than your front door to be enjoying the beach!

Act now to secure your summer escape!

For further information or to arrange a private inspection please contact Troy Goldsworthy, Nutrien Harcourts Minlaton.

RLA 102485

*approximately Added 21 August, 2025 Property ID: #L36203405

Show More

Property features

  • General: Aircon
  • Location: Water Views

Office

Nutrien Harcourts Minlaton RLA102485

Repayment Calculator

Est. bond $1920
  • 237
  • 3
  • 1
  • 3

Property for Sale

17 North Shore Road, HARDWICKE BAY, SA 5575

$749,000 - $779,000

Absolute Beach Front Shack - Renovate, Rebuild or Relax

A fantastic opportunity to secure absolute beach frontage for you and your family to enjoy for decades to come. The property is very neat and tidy, ready for immediate enjoyment while there's endless potential for the future through renovation or to utilise this prime location to rebuild your dream beachfront home.

Set on a 237m2* block the home features three bedrooms and 1 bathroom along with open plan kitchen, dining and meals area which opens onto the front verandah and is kept comfortable year round by the reverse cycle air conditioner.

The property serves a very functional space to accommodate the family as you enjoy holidays and long weekends playing on the beach, catching fish or simply just relaxing and enjoying those spectacular Hardwicke Bay sunsets.

The home has mains water as well as town waste system connected and has off street parking on the southern side perfect for your boat when it's not in the water. The external garden shed will help house the beach toys and equipment for easy access down onto the sand.

The front verandah is the absolute perfect spot for a BBQ lunch or dinner, gazing out over the Spencer Gulf across to Point Turton and beyond with just a few steps needed to get down to the beach.

Local waters are known for their excellent fishing with King George Whiting and Squid amongst the common catches while world class Flaherty's beach immediately adjoins Hardwicke Bay should you ever want to go further than your front door to be enjoying the beach!

Act now to secure your summer escape!

For further information or to arrange a private inspection please contact Troy Goldsworthy, Nutrien Harcourts Minlaton.

RLA 102485

*approximately Added 21 August, 2025 Property ID: #L36203405

Property Features

  • General: Aircon
  • Location: Water Views

Troy Goldsworthy Nutrien Harcourts Minlaton RLA102485

Calculate your home loan repayments
Request Live Stream Inspection

Nutrien Harcourts Minlaton RLA102485

Office Nutrien Harcourts Minlaton RLA102485

Map Location

Get Directions

Need to sell before you Buy?

Need to sell before you Buy?

If you like what you see, but know you'll need to sell before buying, why not find out what you could be sitting on today with an instant Digital Property Appraisal, highlighting the market value including the recent sales, rental history, suburb insights and more.