Property for Sale

300 Goodwood Road, CLARENCE PARK, SA 5034

  • 1620
  • 485 m2
  • 5
  • 2
  • 2
  • 3
  • 3

EOI (USP) - Price guide $2,595,000+

Grand Bluestone fronted Victorian Villa...

Steeped in history, this stunning Return Verandah Villa was one of the first to be established in the newly proclaimed (Est. 1894) suburb of Clarence Park.
Originally one of two estate houses within Clarence Park (the eighth subdivision of Adelaide), the property was initially used for pastural farming and grazing, a history reflected in the E.F. Troy stained glass window above the front door. Over time, the surrounding land was further subdivided as "Workingmen's Blocks" later referred to as "Homestead Blocks". Throughout it's history, the house has served various roles, including as a hospice and a birthing centre, before evolving into the statement home it is today.
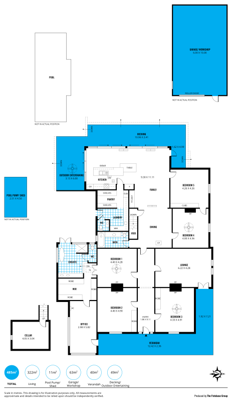
Constructed in 1896 the property had a significant extension and renovation in 2015, transforming it into an executive family home comprising 5 bedrooms and 2.5 bathrooms that still retains it's testament to timeless elegance, now with seamlessly integrated modern comforts.
Set on an expansive 1610 sqm of land (across 2 Titles), in the highly sought after suburb of Clarence Park, the property offers a unique opportunity for families seeking space, style, and convenience. The home maintains all of it's former exterior finishes including an intricately tessellated tiled porch, turned posts and gabled verandah, whilst the interior boasts polished timber floors, lofty ornate ceilings, original (working) fireplaces and a large cellar.
The home has a dedicated entrance wing/office for those who work from home and/or as a consultancy, helping keep business and your private life separated. The extension has seen this home truly transformed into a modern executive residence.
The impressive master ensuite has a picture window and full height glass doors that open into a private lush resort style courtyard. The open-plan family room seamlessly connects to a casual dining area and a gourmet kitchen, complemented by a Butler's pantry with extensive storage and shelving, along with a discreet powder room, that combines style with function.
The rear floor to ceiling sliding doors open out onto an outdoor entertaining area and a large timber decking that overlooks the well manicured gardens and fully fenced in-ground pool; ideal for children to play, pets to roam, or for hosting summer barbecues with friends and family. While in winter you can huddle around the benched seats toasting marshmallows over the firepit and playing a game of charades.
Security is guaranteed via an electric gated entrance with intercom, and as you enter the property you are greeted by an immaculately maintained garden, ample open parking spaces and a 60 m² garage for all the family's cars and trailers.
While its location provides easy access to the CBD, local amenities, schools, parks, and public transport, it feels like you're living in the country surrounded by mature trees, nature, and still only 10 minutes from the city.
With its rich history, modern updates and entertaining spaces, this residence is not just a house; it's a place to create lasting memories.
For more information or to arrange a private viewing, please contact me today. Your dream lifestyle awaits!

Invitations to purchase are extended by way of an Expression of Interest, closing on Tuesday 4th November 2025 at 5pm, Unless Sold Prior. Added 26 September, 2025 Property ID: #L36855817

Show More

Open for Inspection

  • 21 October, 2025 — 11:30 AM to 12:15 PM
Need a different time? Contact Agent

Property features

  • Exterior/Outdoor: Deck, Garden, Outdoor Entertaining, Pool Inground

License Details: RLA255915

Office

Harcourts Tagni RLA255915

RLA255915

Repayment Calculator

Est. bond $1920
  • 1620
  • 485 m2
  • 5
  • 2
  • 2
  • 3
  • 3

Property for Sale

300 Goodwood Road, CLARENCE PARK, SA 5034

EOI (USP) - Price guide $2,595,000+

Grand Bluestone fronted Victorian Villa...

Steeped in history, this stunning Return Verandah Villa was one of the first to be established in the newly proclaimed (Est. 1894) suburb of Clarence Park.
Originally one of two estate houses within Clarence Park (the eighth subdivision of Adelaide), the property was initially used for pastural farming and grazing, a history reflected in the E.F. Troy stained glass window above the front door. Over time, the surrounding land was further subdivided as "Workingmen's Blocks" later referred to as "Homestead Blocks". Throughout it's history, the house has served various roles, including as a hospice and a birthing centre, before evolving into the statement home it is today.
Constructed in 1896 the property had a significant extension and renovation in 2015, transforming it into an executive family home comprising 5 bedrooms and 2.5 bathrooms that still retains it's testament to timeless elegance, now with seamlessly integrated modern comforts.
Set on an expansive 1610 sqm of land (across 2 Titles), in the highly sought after suburb of Clarence Park, the property offers a unique opportunity for families seeking space, style, and convenience. The home maintains all of it's former exterior finishes including an intricately tessellated tiled porch, turned posts and gabled verandah, whilst the interior boasts polished timber floors, lofty ornate ceilings, original (working) fireplaces and a large cellar.
The home has a dedicated entrance wing/office for those who work from home and/or as a consultancy, helping keep business and your private life separated. The extension has seen this home truly transformed into a modern executive residence.
The impressive master ensuite has a picture window and full height glass doors that open into a private lush resort style courtyard. The open-plan family room seamlessly connects to a casual dining area and a gourmet kitchen, complemented by a Butler's pantry with extensive storage and shelving, along with a discreet powder room, that combines style with function.
The rear floor to ceiling sliding doors open out onto an outdoor entertaining area and a large timber decking that overlooks the well manicured gardens and fully fenced in-ground pool; ideal for children to play, pets to roam, or for hosting summer barbecues with friends and family. While in winter you can huddle around the benched seats toasting marshmallows over the firepit and playing a game of charades.
Security is guaranteed via an electric gated entrance with intercom, and as you enter the property you are greeted by an immaculately maintained garden, ample open parking spaces and a 60 m² garage for all the family's cars and trailers.
While its location provides easy access to the CBD, local amenities, schools, parks, and public transport, it feels like you're living in the country surrounded by mature trees, nature, and still only 10 minutes from the city.
With its rich history, modern updates and entertaining spaces, this residence is not just a house; it's a place to create lasting memories.
For more information or to arrange a private viewing, please contact me today. Your dream lifestyle awaits!

Invitations to purchase are extended by way of an Expression of Interest, closing on Tuesday 4th November 2025 at 5pm, Unless Sold Prior. Added 26 September, 2025 Property ID: #L36855817

Property Features

  • Exterior/Outdoor: Deck, Garden, Outdoor Entertaining, Pool Inground

Scott Ellis Harcourts Tagni RLA255915

Open for Inspection

  • 21 October, 2025 — 11:30 AM to 12:15 PM
Calculate your home loan repayments
Request Live Stream Inspection

License Details: RLA255915

Harcourts Tagni RLA255915

Office Harcourts Tagni RLA255915 RLA255915

Map Location

Get Directions

Need to sell before you Buy?

Need to sell before you Buy?

If you like what you see, but know you'll need to sell before buying, why not find out what you could be sitting on today with an instant Digital Property Appraisal, highlighting the market value including the recent sales, rental history, suburb insights and more.